Aktuelles

GWB Logo

Sprechzeiten

dienstags      von        9:00 Uhr bis 12:00 Uhr sowie von 14:00 Uhr bis 18:00 Uhr

donnerstags von     14:00 Uhr bis 17:00 Uhr

 

Gern vereinbaren wir zur Klärung Ihrer persönlichen Anliegen auch einen anderen Termin!

 

GWB Logo

WEG-Reform (WEGMoG)

Auszug relevanter Änderungen ab 1.12.2020

  • § 23-25 WEG Wohnungseigentümerversammlung
  • Die Einladungsfrist beträgt drei Wochen.
  • Jede Versammlung ist beschlussfähig, unabhängig davon, wie viele Eigentümer anwesend oder vertreten sind.
  • Ein Umlaufbeschluss bedarf nur der Textform.
  • § 28 WEG Wirtschaftsplan und Jahresabrechnung
  • Der Beschluss zur Jahresabrechnung beinhaltet nur die Abrechnungsspitze. Alle anderen Angaben sind nicht Beschlussgegenstand
  • Vom Verwalter ist nach Ablauf eines Kalenderjahres ein Vermögensbericht aufzustellen.
  • § 20-21 WEG Bauliche Veränderungen und Kostenbeteiligungen
  • Über alle baulichen Veränderungen kann durch einfachen Mehrheitsbeschluss entschieden werden.
  • Der Schutz der überstimmten Minderheit erfolgt durch Regeln zur Kostentragung:
  1. Grundsätzlich müssen nur die Eigentümer die Kosten der baulichen Veränderungen sowie Folgekosten tragen, die mit „Ja“ gestimmt haben.
  2. Eine Kostentragung erfolgt durch alle Eigentümer nur dann, wenn 2/3 der abgegebenen Stimmen und die Hälfte der Miteigentumsanteile (MEA) den Beschluss befürworten oder sich die Kosten innerhalb eines angemessenen Zeitraums amortisieren.

Alle aktuellen Gesetzestexte könne Sie u.a. unter www.gesetze-im-internet.de nachlesen.

Adresse

Schulgasse 3
04539 Groitzsch
Auf Karte anzeigen

Angebotsart

Vermietung

Baujahr

1925

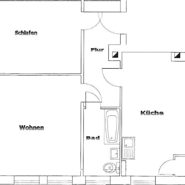
Größe

65,30 m²

Miete

473,00 € zzgl. Betriebskosten und Kaution

Verfügbarkeit

nach Vereinbarung

Für weitere Information oder einen Besichtigungstermin, tragen Sie bitte Ihre Telefonnummer ein - wir rufen Sie kostenfrei zurück.

Beschreibung

Objektbeschreibung

Das Mehrfamilienhaus Schulgasse 3 liegt in ruhiger, zentraler und durchgrünter Lage. Die angrenzende Breitstraße ist eine der
Einkaufsstraßen der Stadt Groitzsch und führt Sie in wenigen Gehminuten direkt ins Zentrum.

Ausstattung

Renovierte Altbauwohnung im 2 Obergeschoss mit modernem Bodenbelag; großzügige Küche; geräumiges Wohnzimmer; Zimmertüren mit originellem Glasausschnitt.
Das Tageslichtbad wird mit neuem Sanitär (Wanne) ausgestattet.

Lage

Groitzsch- unsere liebenswerte Kleinstadt- liegt ca. 28 km südlich von Leipzig, am Rande der Leipziger Tieflandsbucht.
In Groitzsch befinden sich Schulen bis zum Gymnasium, Kindergärten, Gaststätten, ein Hotel, Einkaufsmärkte, Banken, medizinische Einrichtungen, ein Kino und das AZUR Fittness & Wellness Zentrum.Mit Ihrer gut ausgebildeten Infrastruktur bietet die Stadt  hohe Wohn- u. Lebensqualität für alle.

Energieverbrauchskennwert:121,34 kWh/(m²xa)

Haben Sie Fragen oder Interesse an unseren Leistungen, dann senden Sie uns eine E-Mail oder rufen Sie an:

03 42 96/ 4 85-0
@ info@gwb-groitzsch.de